桃園市中壢區大樓

房屋基本資料
案名健行大學【東興國中】景觀3房車位電梯華廈 案號
地址桃園市中壢區健行大學、東興國中、中壢火車站
銷售狀態帶看中售價
售1298萬
房屋類型大樓_華廈 總登記坪數39.63 坪
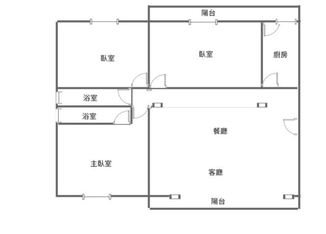
格局3房,2廳,2衛,2陽台,1廚房屋齡31年
每坪單價32.75萬/坪公設比約15%
車位坡道式平面車位法拍件 不是
建物所在樓層9樓/地上9層/地下1層管理費2377 元/月
管委會中庭
電梯 是否為凶宅 不是
300公尺內嫌惡設施 面前道路 約8米
面寬 縱深
邊間不是銷售來源不動產經紀人/專業仲介
房屋特色

◇◆◇歡迎蒞臨◇◆◇更新最新房屋土地廠房資訊



◎建築完成日:83年08月0日



◎基地總面積:約691.21坪/持分8.61坪



◎社區總戶數:約96戶



◎社區公設比:約15%



1.【交通說明】:龍岡路一段公車站、中壢火車站、中壢新屋交流道



2.【購物說明】:和平市場、健行商圈、全聯福利中心、大潤發賣場、家樂福賣場、中原商圈



3.【訴求重點】:有景觀、客餐廳寬敞、室內30坪、前後陽台、衛浴皆有對外窗、低公設比、戶數單純96戶、一層2戶/1部電梯、天然瓦斯、步行皆可到國小國中大學、地點超級好、鄰近和平市場/家樂福賣場/全聯福利中心/信義國小/大潤發賣場/健行科技大學/莒光公園/中原商圈/中壢火車站/捷運A23中壢站(預定)/東興國中/林森國小/中壢體育園區等...、生活與交通極為方便~~~



4.【房屋座向】:客廳陽台→朝西南//房屋大門→朝//社區大門→朝西北



☆★☆看屋0926-179-771或LINEID:s0926179771【曾先生(宇生)】→告知物件→預約時間☆★☆



☆★☆即日起本廣告僅限貼文7日內有效,委託到期日及物件售出後此廣告自動作廢☆★☆

坪數說明
建物登記總坪數39.63土地登記總坪數8.61
主建物坪數26.27停車位坪數
附屬建物坪數4.27公共設施坪數9.09
增建坪數地下室坪數
周邊環境
生活機能和平市場、健行商圈、全聯福利中心、大潤發賣場、家樂福賣場、中原商圈鄰近交通龍岡路一段公車站、中壢火車站、中壢新屋交流道
鄰近地標東興國中、中壢火車站公園綠地莒光公園
鄰近學區信義國小,東興國中,中壢家商,中原大學,健行科技大學捷運站
房屋聯絡人資訊
聯絡人姓名曾宇生
(煩請告知聯絡人,您是在889房屋網看到這則廣告,真摯感恩您的幫忙)
手機
0926-179-771(曾宇生)
Line加入好友
所屬公司名稱◤ 中信房屋 ◢ 聯絡人:曾宇生 (100)登字第186347號 經紀人:99桃縣字第00469號
公司電話0926-179-771 曾宇生公司傳真0926-179-771 曾宇生
公司地址桃園市中壢區環北路164號【 A21環北捷運站旁 】
網址http://www.桃園土地買賣.tw
贊助商廣告
大桃園廠房,大桃園工業地,大桃園工業地廠房
桃園廠房出租,桃園工業地,桃園廠房工業地

桃園中壢健行大學、東興國中、中壢火車站-大樓

桃園中壢大樓-0
桃園中壢大樓-0
桃園中壢大樓-1
桃園中壢大樓-1
桃園中壢大樓-2
桃園中壢大樓-2
桃園中壢大樓-3
桃園中壢大樓-3
桃園中壢大樓-4
桃園中壢大樓-4
桃園中壢大樓-5
桃園中壢大樓-5
桃園中壢大樓-6
桃園中壢大樓-6
桃園中壢大樓-7
桃園中壢大樓-7
桃園中壢大樓-8
桃園中壢大樓-8
桃園中壢大樓-9
桃園中壢大樓-9
桃園中壢大樓-10
桃園中壢大樓-10
桃園中壢大樓-11
桃園中壢大樓-11
桃園中壢大樓-12
桃園中壢大樓-12
桃園中壢大樓-13
桃園中壢大樓-13
物件留言
請注意,如果您詢問的內容與物件不相符合或是廣告,經過審核,系統將會直接刪除您的發問內容
等待圖示
檢舉物件不實
等待圖示
黃金熱銷
相似物件
本房屋網站為租用式開放房仲網站建置平台,僅提供房屋仲介會員刊登-桃園市中壢區大樓 -等房屋資訊參考,並不涉入任何諮詢、交易。物件(服務)聯絡人公佈的圖文影音資訊若有侵犯智財權或與客戶聯絡交易過程中若衍生民事或刑事等法律問題, 皆與本房屋網站無關。電話:07-7963288